Se artikler:
Nørrelandskirken; Arkitektur 1:71, 1971
Klokketårnet ved Nørrelandskirken. Præstebro Kirke; Arkitektur 1:71, 1971
Nørrelandskirken
Eksteriør
Interiør
Byggeriet
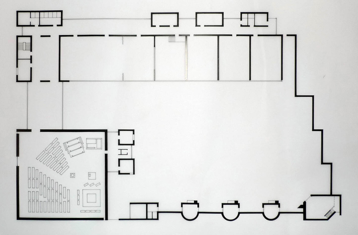
Tegninger og modeller
Tilbygning 2005
Sagsnr: 18
Adresse: Døesvej, 7500 Holstebro
Konkurrenceår: 1961
Indvielsesår: 1969
Ekstra info: Klokketårn 1970 Tilbygning 2005 sm.m. Exners Tegnestue III















































































































